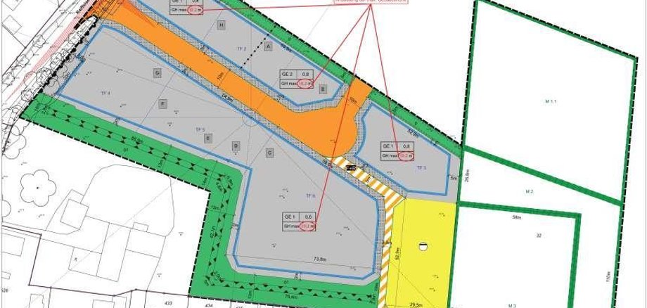
Um den Ortsteil Hoetmar insbesondere für die Standortsicherung und Weiterentwicklung der ortsansässigen Gewerbebetriebe bedarfsgerecht mit neuen Gewerbegrundstücken zu versorgen, soll östlich der Raiffeisenstraße ein neues Gewerbegebiet entwickelt werden. Die Erforderlichkeit der Ausweisung neuer Gewerbeflächen ergibt sich aus konkreten, seitens der Gewerbetreibenden geäußerten Flächenbedarfen. Dazu wird der Bebauungsplan Nr. 4.14 nebst 24. Änderung des Flächennutzungsplanes 2010 aufgestellt.
Nach der Erarbeitung der jeweiligen Entwurfsunterlagen erfolgte im August/September 2023 die öffentliche Auslegung der Planunterlagen (Bebauungsplan Nr. 4.14 und 24. Flächennutzungsplanänderung) gemäß §§ 3 Abs. 2 und 4 Abs. 2 BauGB. Die während dieser Beteiligung vorgetragenen Stellungnahmen wurden in der öffentlichen Sitzung des Stadtentwicklungsausschusses am 16.11.2023 beraten. Aufgrund der hierbei vorgenommenen Planänderungen fasste der Ausschuss den Beschluss, eine erneute, beschränkte öffentliche Auslegung der Planunterlagen gemäß § 4a Abs. 3 BauGB durchzuführen.
Im Rahmen der erneuten, beschränkten öffentlichen Auslegung sollen Stellungnahmen nur zu den in der Planzeichnung, im Begründungstext sowie dem Umweltbericht rot markierten Änderungen und Ergänzungen vorgetragen werden. Im Wesentlichen handelt es sich dabei um die Erweiterung der Geltungsbereiche zur planungsrechtlichen Sicherung der vorhandenen Heckenstruktur auf dem südlich gelegenen Flurstück 33, die Anpassung der Festsetzung Nr. 2.2.1 zur Bestimmung des Bezugspunktes für die Höhe baulicher Anlagen und die Mindesthöhe des Erdgeschossfußbodens, damit verbunden eine Anpassung der maximal zulässigen Gebäudehöhe, den Ausschluss von Versiegelungen im Vorgartenbereich sowie die Überarbeitung der Eingriffs-/ Ausgleichsbilanzierung.
Die Planunterlagen können in der Zeit vom 04.12.2023 bis 17.12.2023 im Internet unter www.o‑sp.de/warendorf unter Bebauungspläne im Verfahren bzw. Flächennutzungsplan eingesehen werden.
Hierbei besteht die Möglichkeit, eine Stellungnahme zur Planung abzugeben. Ebenfalls ist es möglich, Stellungnahmen per E-Mail abzugeben.
Darüber hinaus werden die Planunterlagen bei der
Stadtverwaltung Warendorf
Amt 61 - Stadtplanung
Freckenhorster Straße 43
1. OG, Altes Lehrerseminar
48231 Warendorf
zur Einsichtnahme, Erläuterung und Erörterung öffentlich ausliegen.
Innerhalb des genannten Zeitraumes können sich die Bürgerinnen und Bürger über die Planung informieren sowie Anregungen und Bedenken zur Planung abgeben. Die öffentliche Auslegung erfolgt während der Öffnungszeiten (montags bis donnerstags von 08:30 Uhr bis 12:00 Uhr und von 14:00 Uhr bis 16:00 Uhr sowie freitags von 08:30 Uhr bis 12:30 Uhr).

